: 2
: 2
: Naxxar
Ground Floor
Open Plan
Semi Finished
Square Layout
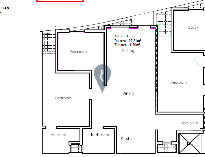
NAXXAR. A two-bedroom ground-floor maisonette located in a new and exclusive development in Naxxar.
The property consists of a spacious open plan, two double bedrooms, a main bathroom, an ensuite, as well as a boxroom. The property is ready-built and is being offered semi-finished. The optional garages are also available.
