: 1
: 2
: Naxxar
Ground Floor
Open Plan
Semi Finished
Square Layout
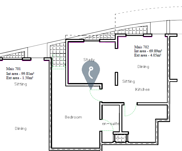
NAXXAR. One-bedroom plus study Ground-Floor Maisonette located in a new and exclusive development in Naxxar.
The property consists of an open plan, two double bedrooms, a main bathroom, and an ensuite. The property is ready-built and is being offered semi-finished. Excellent rental investment or for those looking to downsize. Optional garages are also available.
