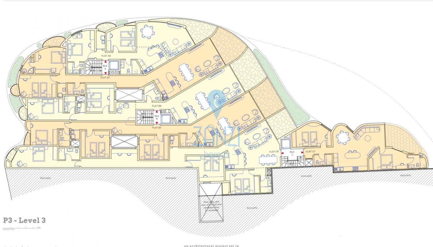
NADUR Gozo - A luxurious new two-bedroom APARTMENT (C8) is for sale, part of a spectacular development enjoying breathtaking ODZ valley views and Ramla Bay!
This third-floor level property comprises an open plan kitchen living dining area leading to a nice size front terrace overlooking the breathtaking views, two bedrooms one with an ensuite, and the main bathroom. The project shall feature an outdoor splash pool and an indoor heated pool. These properties will be finished with all common areas including the pool, facade, and all private terraces. All units will be sold in a semi-finished state with an option to be fully finished at an extra cost.
The completion date for the shell building is the end of the year 2022, whilst the facade, common parts, and apartment terraces shall be finished by end of September 2023.
A great summer residence or rental investment. Definitely worth viewing!

