QORMI - THREE-BEDROOM PENTHOUSE
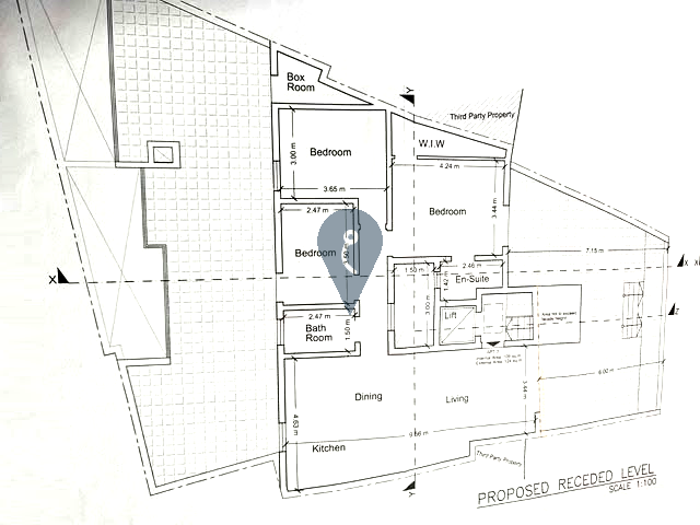
Discover an exceptional opportunity to own a spacious penthouse in the charming town of Qormi, offering a total internal and external area of approximately 230 square metres. Currently on plan, this property provides the perfect chance to secure a modern home designed for comfortable living and entertaining.
The penthouse features a generous open-plan kitchen, living, and dining area that creates a bright and welcoming atmosphere, ideal for both everyday living and hosting guests. The layout includes three well-sized bedrooms and two bathrooms, offering practicality and comfort for families or those seeking extra space. A convenient box room provides additional storage, helping keep the living areas organised and functional.
One of the standout features of this property is its large terrace, perfect for outdoor dining, relaxing, or entertaining while enjoying open views and plenty of natural light. The property is being offered finished, excluding bathrooms and internal doors, allowing the new owner the freedom to personalise these final touches according to their taste and style.
Situated in a well-connected residential area of Qormi, this penthouse offers the ideal balance between space, modern living, and accessibility to everyday amenities.
Contact us today for more information or to arrange a viewing and secure this outstanding penthouse before completion.

