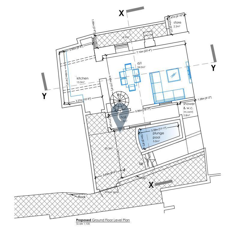
NADUR, Gozo - Tucked away in a quiet alley in the sought-after San Blas area, this unconverted farmhouse is being offered in its current state with approved permits to transform it into a spacious four-bedroom home. The proposed layout features an open-plan kitchen, dining, and living area at the ground-floor level, complemented by a guest bathroom and a plunge pool, ideal for relaxed indoor-outdoor living. On the first floor, the plans include three bedrooms, each with its own en-suite bathroom, while the second floor is dedicated to a master suite with an en-suite, a walk-in wardrobe, and a corner terrace. The property is freehold and offered with all approved permits in place.

