DINGLI – Situated in a quiet and desirable residential area of Dingli, this two-bedroom penthouse forms part of a modern development, offering a comfortable layout combined with exceptional outdoor living space.
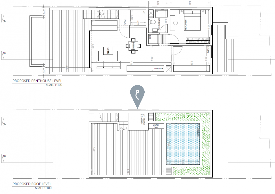
The property comprises a bright open-plan kitchen, living, and dining area, designed to maximise natural light and functionality. The layout includes two bedrooms and a main bathroom, providing a practical and well-balanced living space.
A standout feature of this penthouse is the private roof terrace, complete with a swimming pool, creating the perfect setting for entertaining, relaxation, and enjoying outdoor living in total privacy.
The property is being offered finished, excluding bathrooms and internal doors, allowing buyers the opportunity to personalise the final finishes according to their taste.
Garages may also be available within the development.
Contact the agent for further details or to arrange a viewing.


