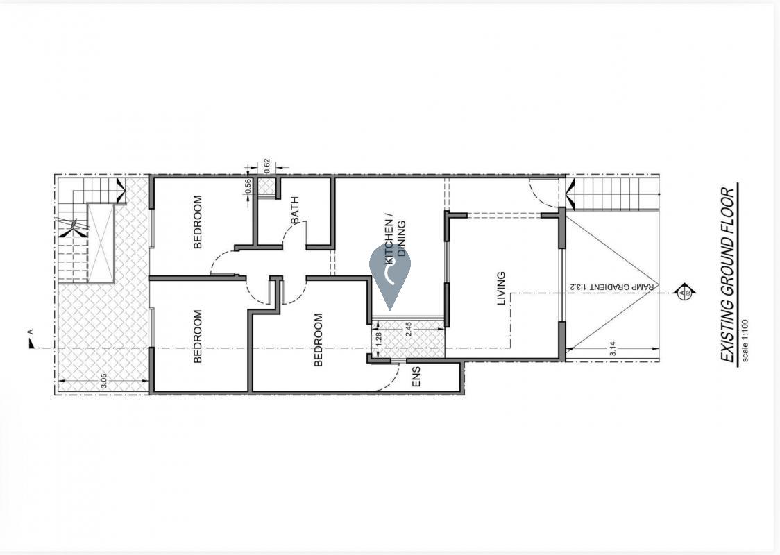
ATTARD - An elevated ground-floor maisonette situated in a small block of two units, being offered in an unconverted state. Included is a three-car street-level garage with a backyard with a well, interconnected to the property. Property Layout comprises a separate Living/Dining & Kitchen area (can be combined as an open plan with minor structural changes), three bedrooms (master with guest toilet), Main bathroom, an internal yard, and a back terrace with a staircase leading to another back yard with a well that interconnects the three-car garage. The property is freehold and is being offered in an unconverted state. Contact the agent to schedule a viewing.

