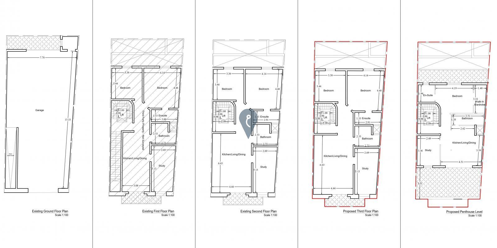
BIRZEBBUGA - 135 sqm Airspace, plus ten-car garage. Two apartments already built and permits to build a further flloor abd a recessed penthouse in Birzebbuga
Location: Birzebbuga, Malta
Discover an exceptional investment opportunity in Birzebbuga with this versatile 135 sqm airspace and a ten car garage street level. Ideal for development or as a long-term investment, this property offers ample space and potential for various projects.
Location: Centrally located in Birzebbuga, close to amenities and main roads.
Potential Uses: Development of additional floors, recreational space, or storage.
Why Invest in Birzebbuga?
Birzebbuga is a vibrant area that combines a rich history with modern growth, offering a unique blend of characteristics that make it an attractive location for investment. With ongoing developments in the area, this is the perfect time to secure your stake in the future.
Feel free to customize any part of this listing as needed!
