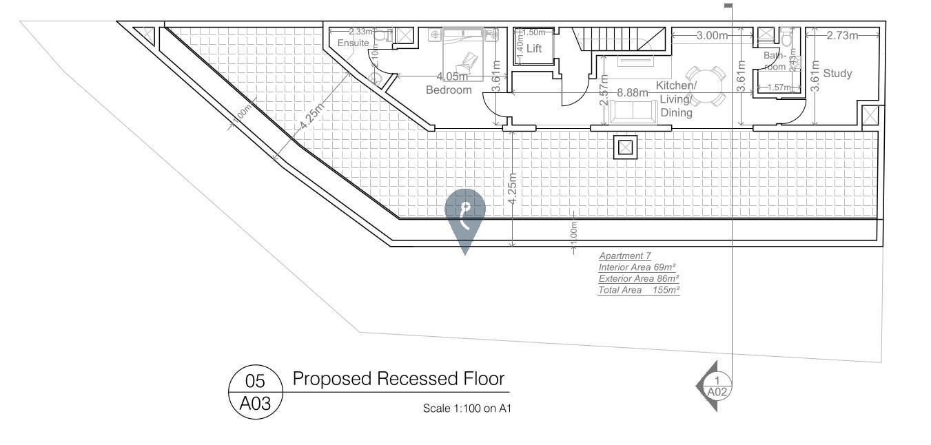
XEWKIJA, Gozo – Set in a sought-after residential area, this exciting small development of just seven units offers a fantastic opportunity to secure a bright fourth-floor penthouse. The layout features a welcoming open-plan kitchen/dining/living leading onto a wrap-around front terrace, ideal for everyday comfort and easy entertaining. Accommodation includes a main bedroom, a study, and two bathrooms, making it a practical choice for both homeowners and rental investors. Being offered in shell form, with finished common parts, and served with a lift. A finishing package is available on request, and optional street-level garages are also available. Freehold.

