SIGGIEWI – Modern Living in a Tranquil Village Setting
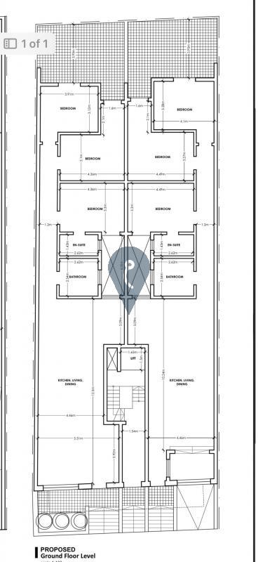
Located in the heart of Siggiewi, this exclusive new development offers the perfect blend of contemporary living and village charm. Set within a quiet residential area, the project consists of a small, well-designed block featuring a limited selection of residences.
The development includes:
One Maisonette
Six Spacious Apartments
Two Penthouses
Each unit is thoughtfully designed, offering three-bedroom layouts exceeding 170sqm, with generous internal spaces and modern proportions throughout. The top-floor units enjoy large back terraces, ideal for outdoor dining, relaxation, and entertaining.
Currently on plan, the project is scheduled for completion in shell form by December 2026. Units are being offered finished, excluding bathrooms and internal doors, allowing buyers the freedom to personalize interiors to their taste while enjoying a streamlined finishing process.
Optional basement lock-up garages are also available, providing secure parking and additional storage.
Situated in a peaceful yet well-connected part of Siggiewi, residents benefit from a serene environment while remaining close to everyday amenities.
This is a rare, one-time opportunity to acquire a modern home within one of Malta’s most picturesque villages.
