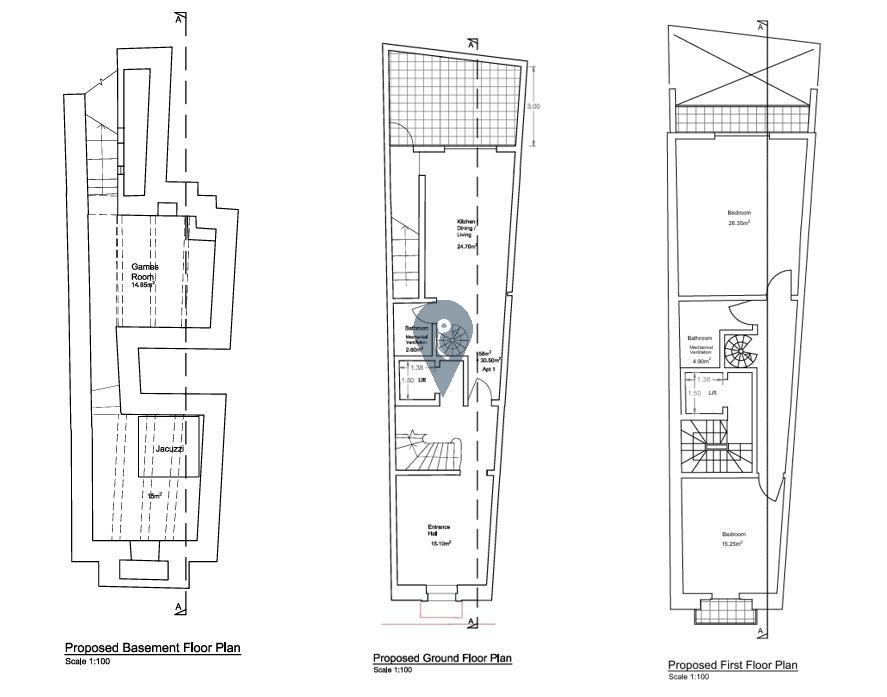
RABAT – A rare opportunity to acquire a spacious 157 sqm triplex apartment forming part of a brand-new development in the heart of Rabat, set to be completed by the end of 2026, with permits already issued and works commencing shortly. This unique property is ideal as a comfortable residence or a solid investment and is being offered finished, excluding internal doors and bathrooms. The layout is spread across three levels, comprising a basement with a games room and jacuzzi area, a ground floor with an open-plan kitchen, dining, and living area, entrance hall, main bathroom, and internal staircase with lift access, and a first floor hosting the main bedroom, second bedroom, bathroom, and further lift and staircase access. Situated in a central and highly desirable area close to all amenities, this home combines modern living with an exceptional location.

