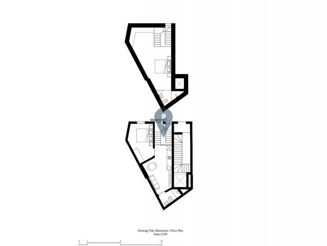
Located on the ground and first floor of a modern, newly planned block in a quiet residential area of Pietà, this stylish Duplex Maisonette is being offered on plan, with construction works set to commence shortly.
The property features a flexible layout comprising a study (which can easily be converted into a second bedroom), a main bathroom, and a bright open-plan kitchen, living, and dining area on the ground floor, with the main bedroom and ensuite located on the upper floor, providing a private retreat.
Measuring 76.1 sqm in total, the maisonette offers a practical and contemporary design that appeals to both owner-occupiers and investors. Its adaptable layout and central location make it an excellent choice for first-time buyers or as a rental investment.
Contact your listing agent for further details or to reserve this unit at the plan stage.

