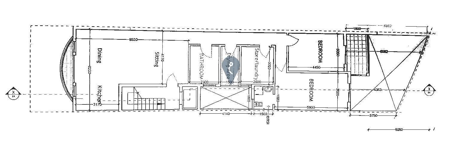
ZEBBUG: Set in a prominent yet quiet area of Żebbuġ, this well-presented three-bedroom apartment enjoys open valley views and forms part of a small block of only four units, with each apartment occupying its own floor. The property features a bright open-plan kitchen with front balcony, living and dining area, three well-sized bedrooms including a main bedroom with en-suite, a spacious main bathroom, a back balcony, and a laundry room which can easily be converted into a study or home office. Being offerdfurnished and measuring circa 125 sqm, this apartment offers an excellent opportunity as a rental investment or as an inviting home for first-time buyers. Contact us for more information or viewings.

