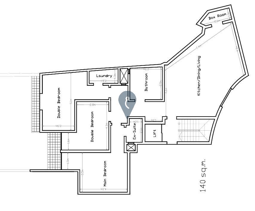
ZURRIEQ – New on the Market. Zurrieq Finished & Furnished a Three-Bedroom Apartment situated on the first floor in a quiet residential area, offering a bright square layout with excellent natural light. Measuring 140sqm, this home includes an open-plan kitchen/living/dining area, a main bedroom with en-suite, a spacious main bathroom, a washroom, a boxroom, and two additional well-sized bedrooms. Fully finished and furnished (with some furniture potentially needing updating), this property is currently rented, making it a strong hassle-free investment that practically rents itself—ideal for couples, families, or investors seeking a ready-to-move-into home with solid rental potential. Situated on a small block of eight. Contact us for more information or to arrange a viewing.

