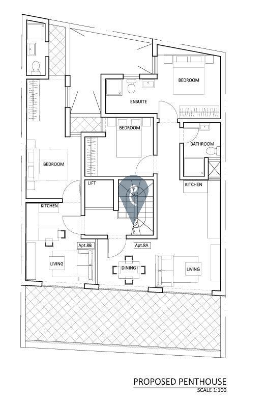
New on the market is this penthouse in Sliema. New development, which is being offered as a full floor, is already split into a one-bedroom unit and a two-bedroom unit, making it an exceptional opportunity for both residential and investment purposes.
This level includes full airspace, providing future development potential or the option to redesign into a larger single penthouse if desired. Both units are being offered fully finished with modern bathrooms, excluding internal doors, and enjoy bright interiors, efficient layouts, and comfortable outdoor areas. Situated just a short walk from the seafront, this unique offering combines flexibility, exclusivity, and long-term value in one of Sliema’s most sought-after streets.
