: 5
: 9
: Qormi
Yard
Airspace
Freehold
Games Room
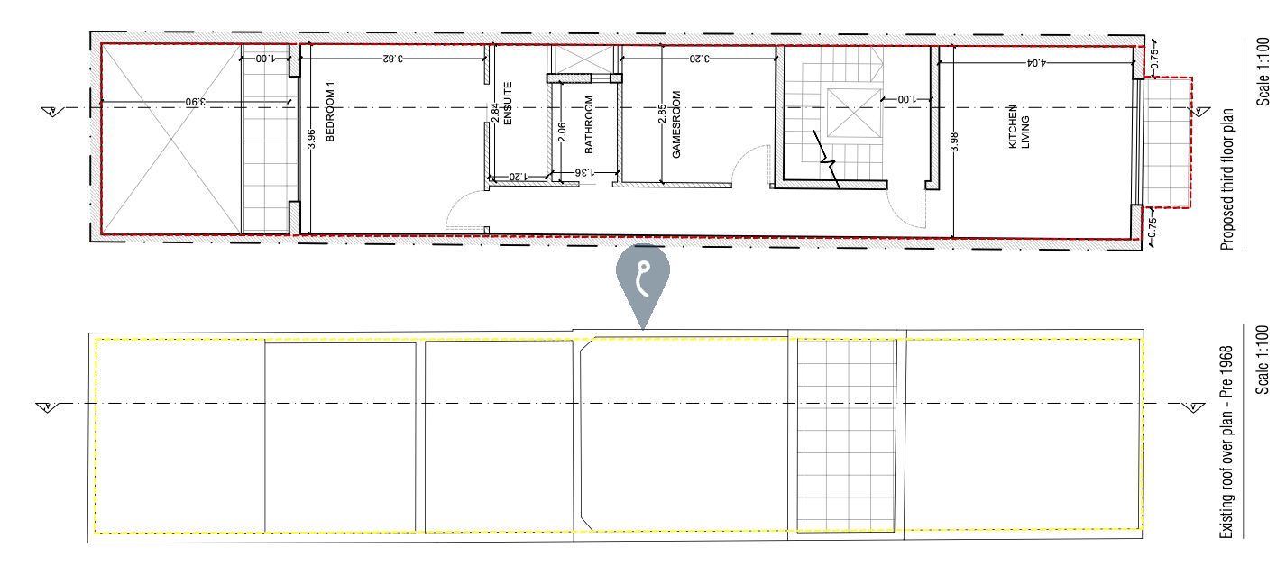
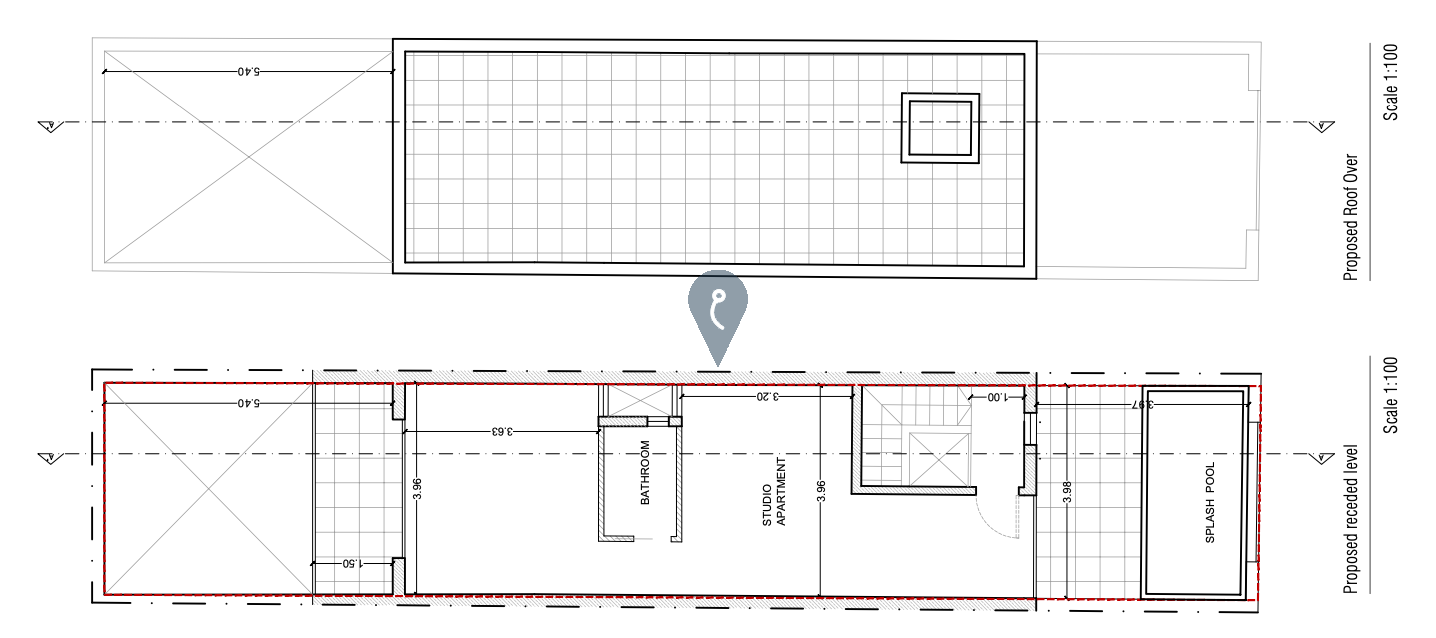
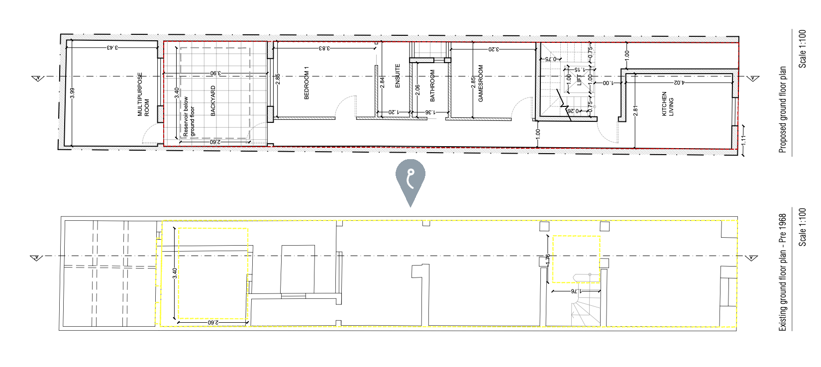
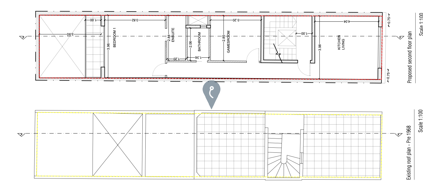
This property in Qormi is currently a townhouse and will be offered as is, with approved permits in place for the development of a whole block consisting of five units, each featuring one bedroom plus a study. The property is being offered freehold, offering a great investment opportunity for redevelopment or future rental prospects. Contact the agent to get more information.

