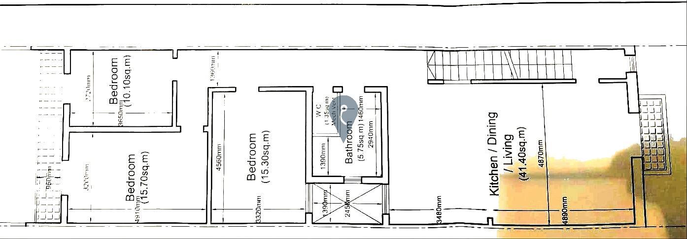
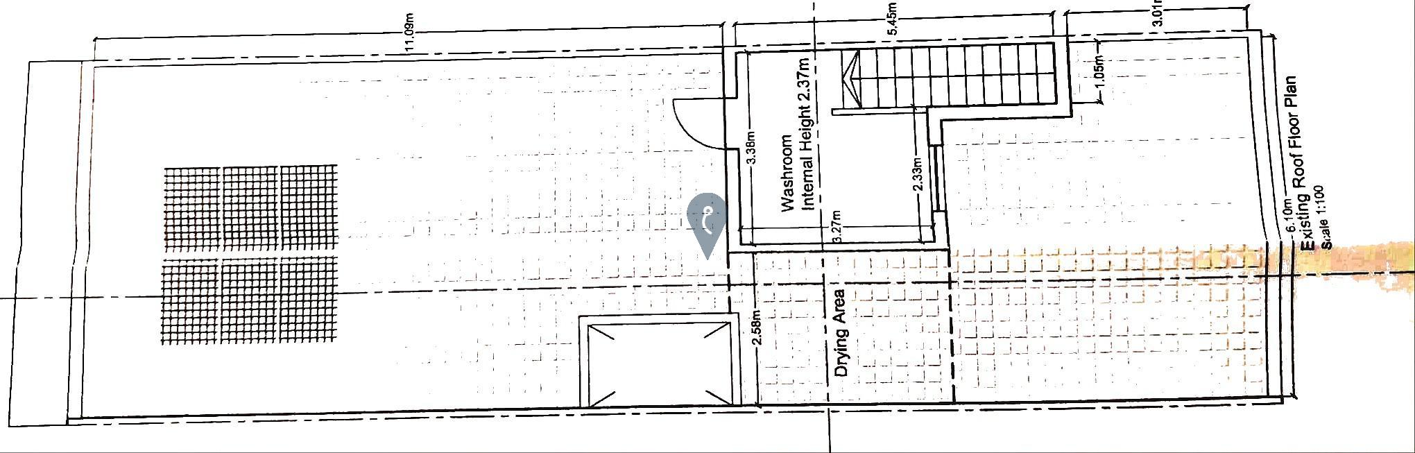
MOSTA – Located in the sought-after area of Santa Margherita in a block of only two, this ready-to-move-in elevated first-floor maisonette (with a third-party maisonette underneath) offers comfort, space, and modern living. Spanning approximately 243 sqm (114 sqm external), this freehold property with its own airspace features a bright open-plan layout with a fully equipped Bosch kitchen, dining, and living area leading onto a small front balcony. The home includes three generously sized bedrooms—one of which is a master bedroom with a back balcony—along with a main bathroom and a spare toilet. It also benefits from a washroom and a full private roof with unobstructed views of the iconic Mosta Rotunda. Complementing the property is a large three-plus-car garage with a bathroom, storage, electricity, water, and an electric door, accessed through a shared drive-in with an additional parking space. Fully air-conditioned and finished to high standards, this property also includes twelve solar panels and is situated in a quiet residential area close to all amenities, making it ideal for families, couples, or as a solid rental investment.

