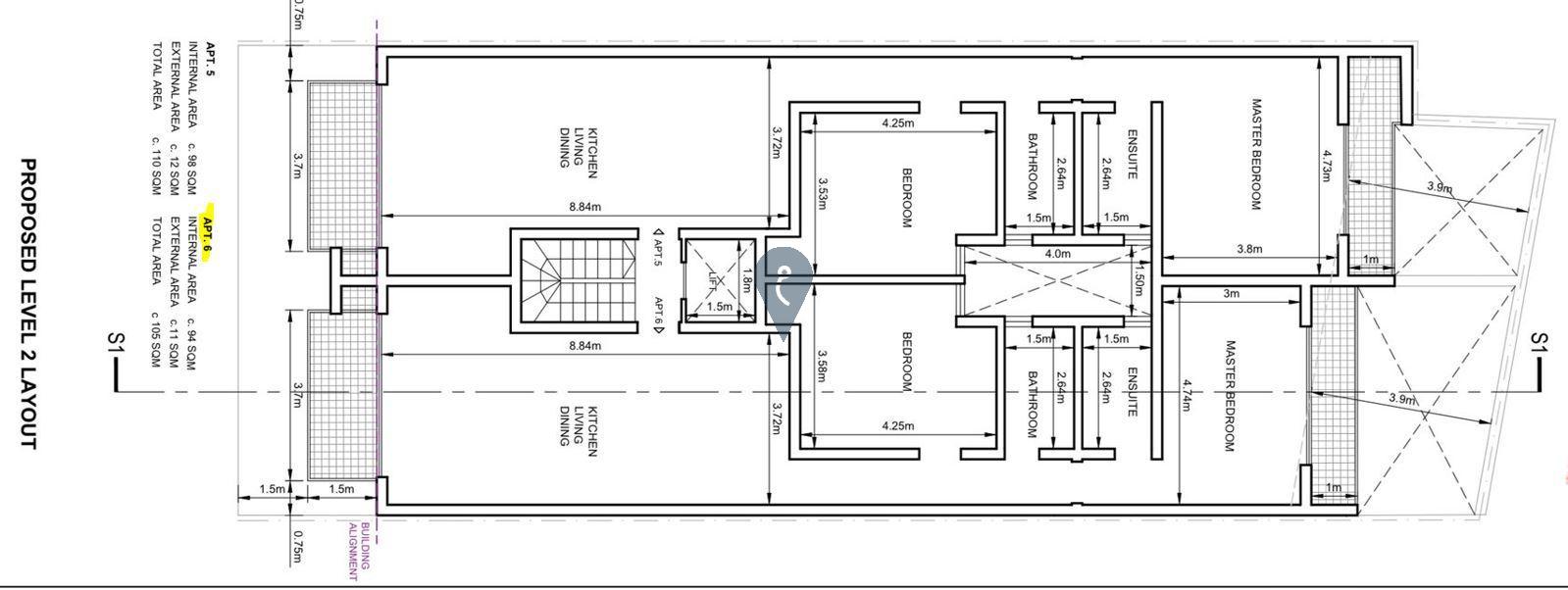
BIRKIRKARA - (Border Balzan) – this 105 sqm, second-floor, fully finished 2-bedroom apartment (on plan) is an excellent opportunity in a sought-after and central area close to St Aloysius College. The layout features an open-plan kitchen, living, and dining area with a front balcony, two double bedrooms (main with a back balcony and ensuite), and a main bathroom. The property is freehold and will be delivered finished, including bathrooms and internal doors, with a projected completion date of November 2026. Ideal for first-time buyers or rental investment. Contact us for more information or viewings.

