: 1
: 1
: San Gwann
Balcony
Lift
Open Plan
Freehold
Pet Friendly
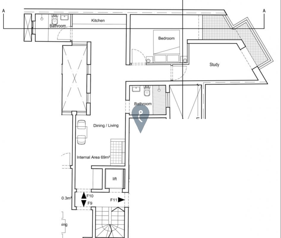
SAN GWANN - In the heart of the town, one can find this brand new first-floor apartment. This fourth-floor apartment consists of a nicely sized open plan kitchen/living/dining leading to a front corner terrace, a guest bathroom, and a double bedroom. This property is ideal for a first-time buyer or an investor. This property is being offered in advanced shell form with the finishing options at an additional cost.


