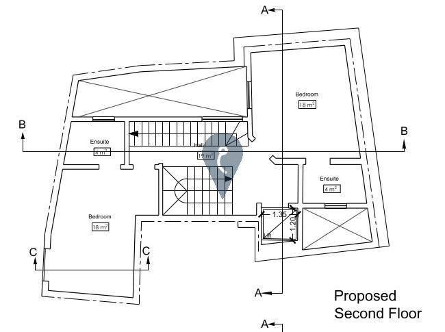
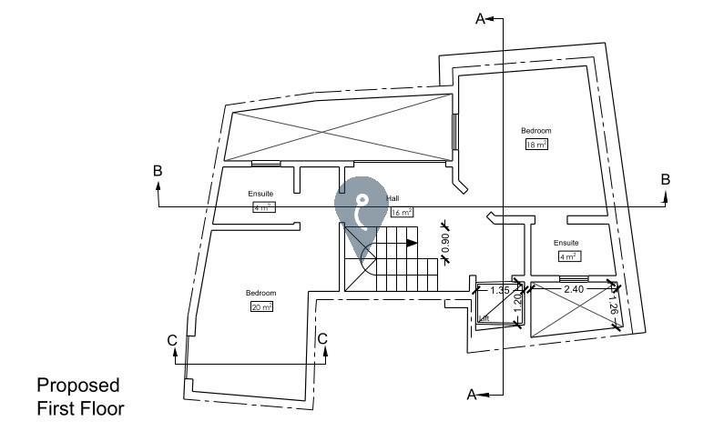
ZEBBUG, Gozo - Discover this charming unconverted farmhouse, perfectly positioned in a tranquil alley on the village outskirts. This traditional property boasts a generously sized room featuring beautiful stone arches that showcase authentic Maltese craftsmanship. Currently offered in its unconverted state, the farmhouse presents an exceptional development opportunity with approved permits already in place for a stunning four-bedroom, four-bathroom residence. The approved plans include a guest toilet, spacious open-plan kitchen, dining and living area on the ground floor, a practical washroom, and a rooftop swimming pool. This freehold property offers the perfect blend of traditional character and modern potential, allowing you to create your dream home while preserving its historic charm. For added convenience, a complete finishing package is available upon request to transform this diamond in the rough into your ideal Mediterranean retreat.

