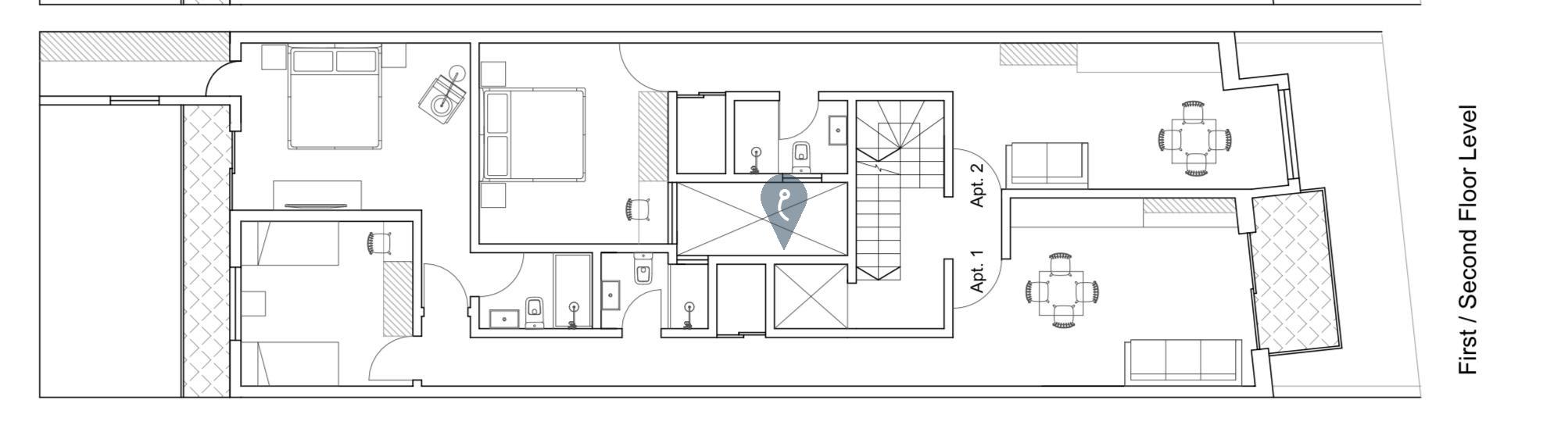
Located in the sought-after residential area of Swieqi, this spacious two-bedroom, two-bathroom apartment offers a perfect blend of comfort and convenience. Being offered as a semi-finished, freehold property, it provides the flexibility to customize the interiors to your taste. The layout includes an open-plan living, dining, and kitchen area, leading to a private balcony. Completion is expected by the end of 2026, making it an ideal investment or future home in a prime location close to all amenities. Don’t miss this opportunity to secure a property in one of Malta’s most desirable areas!
