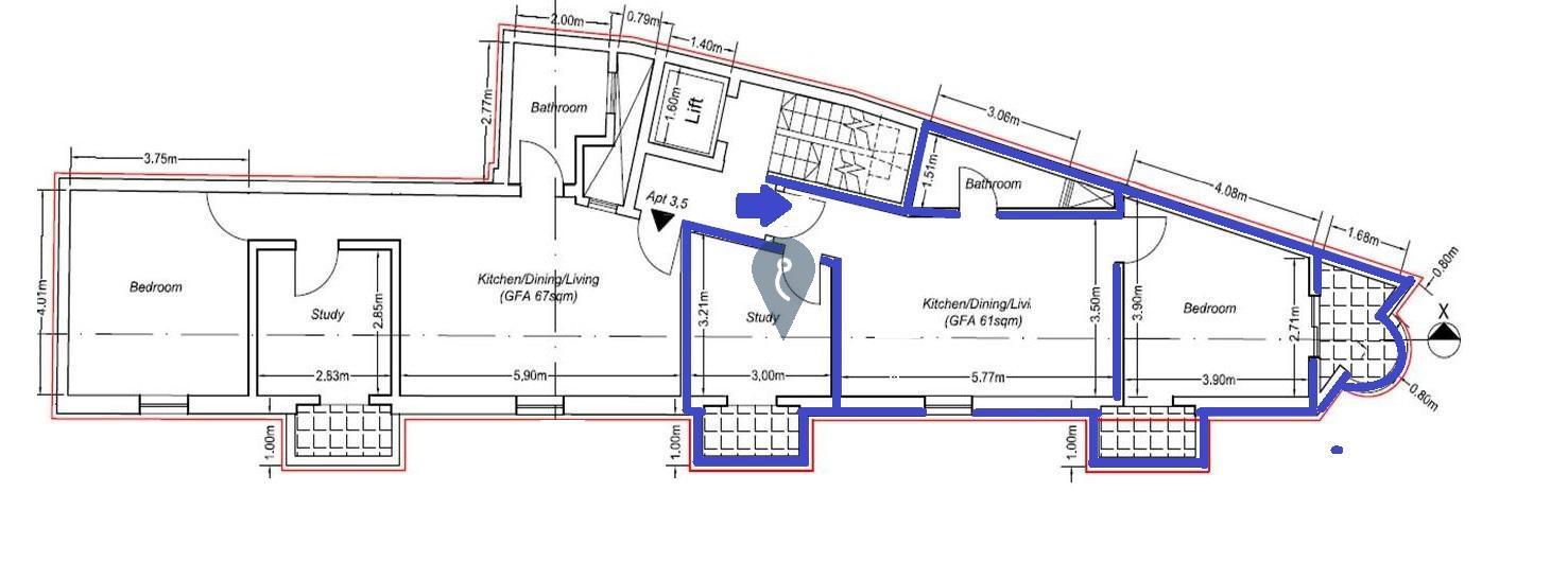
PAOLA: This brand-new (2025) first-floor one-bedroom apartment forms part of a small, exclusive block, offering a comfortable and modern living space in a highly convenient location. Situated within walking distance of Fgura and Cottonera, this residence is ideal for first-time buyers, investors, or those looking for a stylish, low-maintenance home.
The apartment features a spacious open-plan kitchen, living, and dining area, designed for both functionality and comfort. A separate study provides a versatile space for a home office or additional storage area. The bedroom is well-sized, ensuring a cozy retreat, while a lift provides easy access to all floors.
Offered fully finished, excluding internal doors and bathrooms, this property allows for a personalized touch while still benefiting from high-quality craftsmanship. Being freehold, it offers complete ownership with no ongoing ground rent obligations.
A fantastic opportunity in a sought-after location, combining convenience, modern design, and investment potential.


