: 2
: 2
: Mellieha
Yard
Lift
Utility Room
Finished
B - Modern
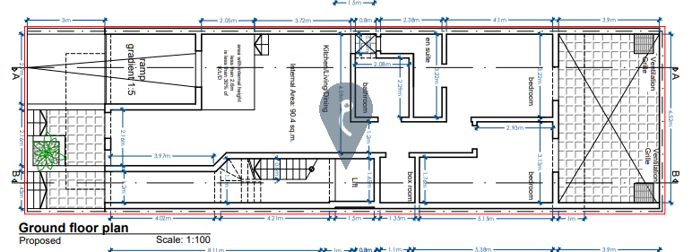
MELLIEHA - Located in the best area of the village close to Selmun Park is this ground-floor maisonette. Layout in the form of an open plan kitchen, living, dining, two bedrooms, main with ensuite, utility room, and a guest bathroom. Complimenting this property is a large back yard ideal for entertaining. This property is being offered finished including bathrooms and internal doors.


