: 3
: 4
: Mosta
Swimming Pool
Terrace
Balcony
Semi Finished
Pet Friendly
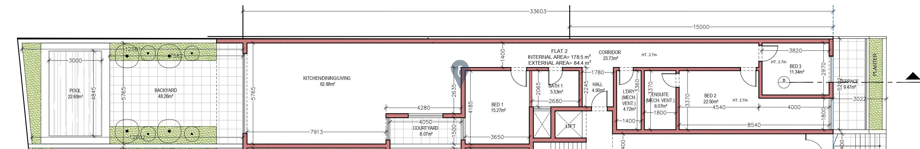
MOSTA - This charming and spacious ground-floor maisonette is located in the heart of Mosta. The property features three bedrooms, each with an en-suite, a guest bathroom, a balcony, and a laundry room. It also includes an open plan kitchen-living-dining area, a large terrace perfect for entertaining, and a pool. Construction is set to begin in May 2025, and the property will be offered finished, excluding bathrooms and internal doors, by December 2026. Optional lock-up garages are available. Freehold.

