image

Luqa - Land / Site / Plot

€1,700,000
Available From:
Available
Ref No.:
76465
Type:
Land / Site / Plot
SQM:
329
Room:
35
Bathrooms:
6
:
: 6
: Luqa
Parking Space
Valley Views

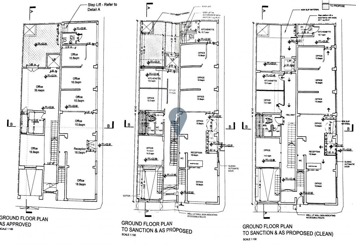
LUQA - Comes to this property situated on a prominent road overlooking Malta International Airport. The building consists of a block of three floors currently as offices, with an adjacent terraced house. Permits for demolition and re-building of the site, including underground garages, four floors, and a recessed floor. The site must be seen to appreciate its potential aspects.

You might also like