image

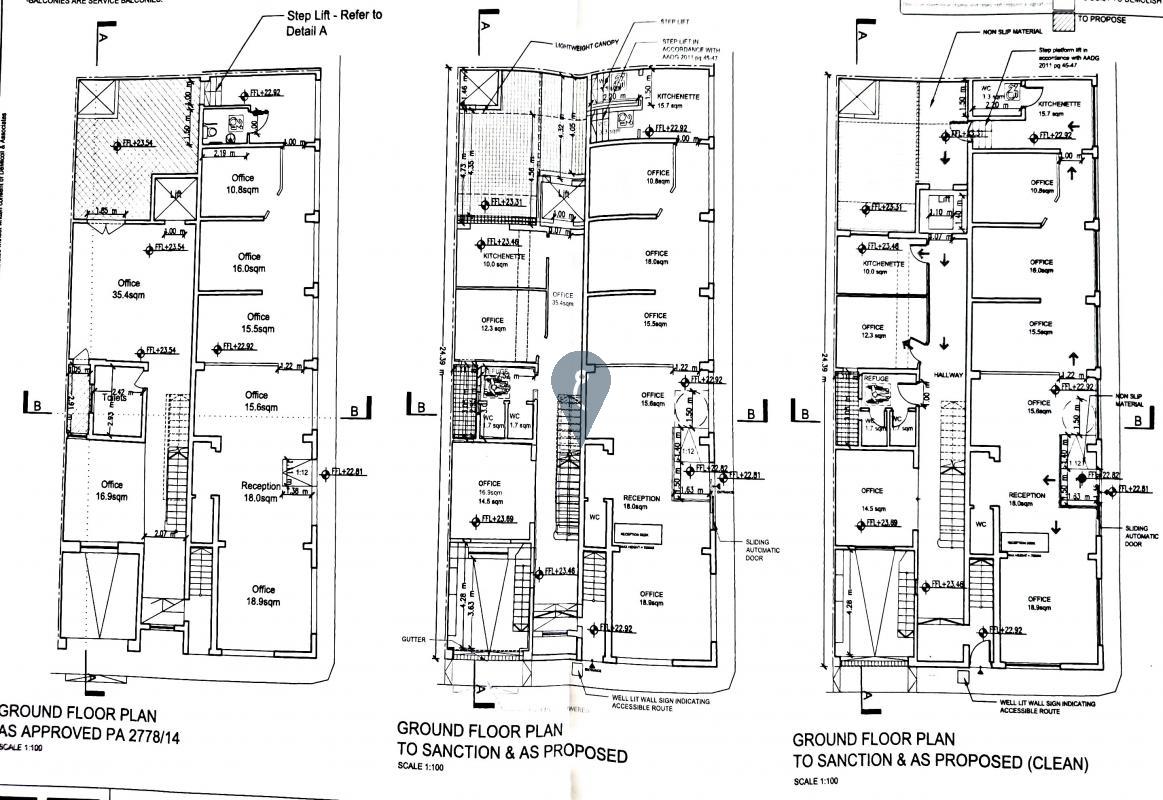
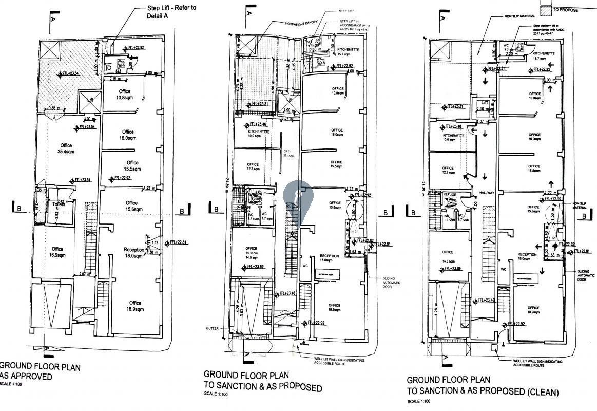
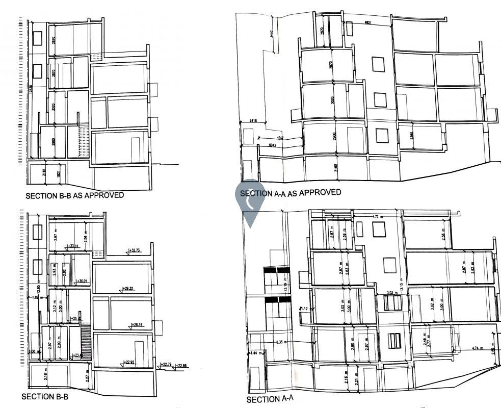
Luqa - Offices

€1,700,000
Available From:
Available
Ref No.:
76458
Type:
Offices
SQM:
329
Room:
15
Bathrooms:
5
:
: 5
: Luqa
Parking Space
Front Terrace
Kitchen
Air Conditioning

LUQA - Comes to this property situated on a prominent road overlooking Malta International Airport. The building consists of a block of three floors currently as offices, with an adjacent terraced house. Permits for demolition and re-building of the site, including underground garages, four floors, and a received floor. The site must be seen to appreciate its potential aspects.

You might also like