NAXXAR - Piece of history, this remarkable 500-year-old house, is located on a quiet street in the charming town of Naxxar. As the oldest house on the street, this residence is offering a calm retreat in a prime residential area. Just minutes from the Piazza, you'll find yourself close to all amenities, in the peaceful ambiance of this historic neighborhood (UCA Area).
This exceptional property is two interconnected houses, skillfully converted to create a harmonious living environment. Recently renovated with attention to detail, the house combines contemporary luxury with traditional charm. From brand-new tiles to a state-of-the-art kitchen, every element has been designed to maintain the character of the old world while providing the comforts of modern living.
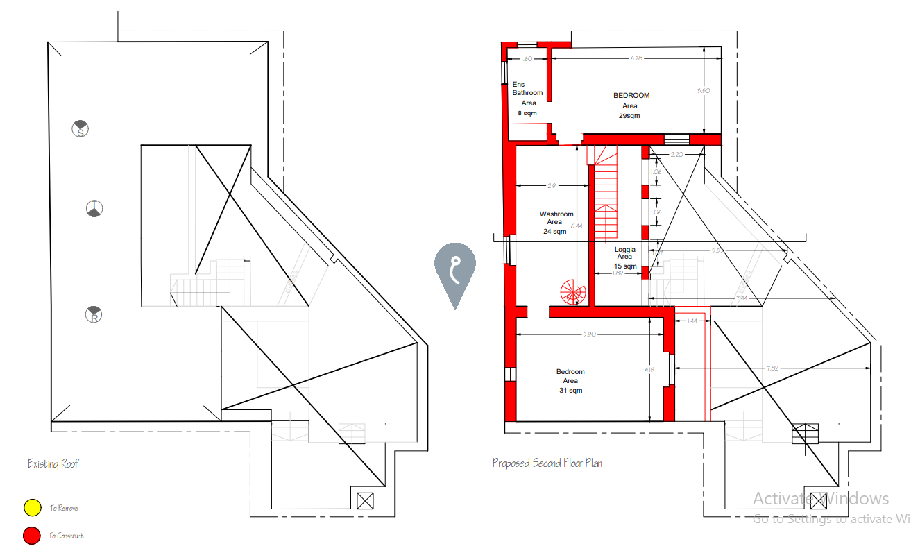
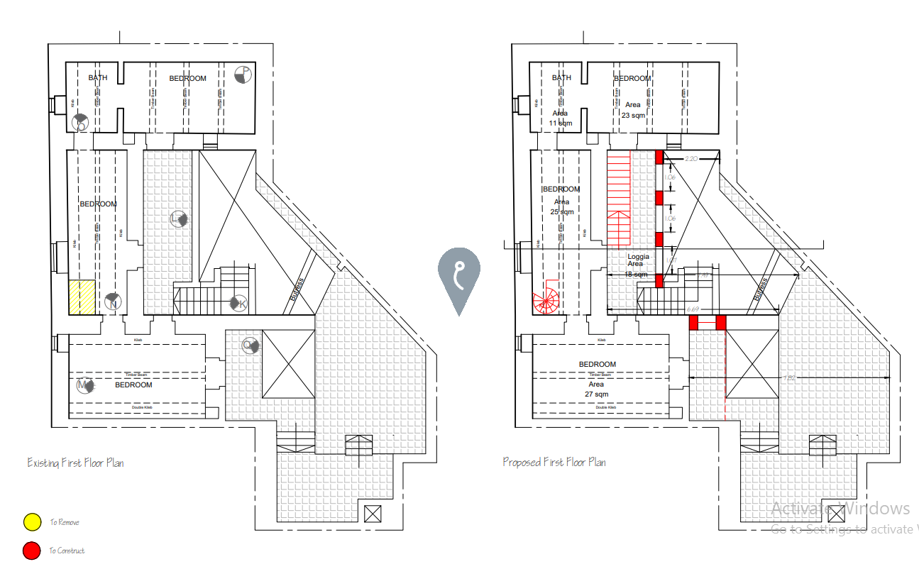
The property boasts three bedrooms, three bathrooms, and two kitchens, offering ample space for a family or a couple with a specific taste for heritage living. Whether you're seeking a stunning family home, a charming boutique hotel, or a combination of both, this house offers endless potential. Additionally, permits are already in place for the development of an additional receded floor, allowing for even more living space and rental potential.
A true highlight of the home is the central courtyard. This outdoor space is ideal for relaxing afternoons and intimate gatherings, offering a private oasis within the heart of the home.
For those who work from home, the property also includes a dedicated study or office space, providing a quiet and inspiring environment.
This unique residence will be offered partly furnished, with most of the carefully selected pieces remaining to complement the home's character. However, some personal items will be kept by the current owner.
If you've been dreaming of a home that combines historical significance with modern comforts, this Naxxar gem might be your choice.
Embrace the opportunity to own a piece of Maltese heritage in a location that offers tranquillity and convenience.

