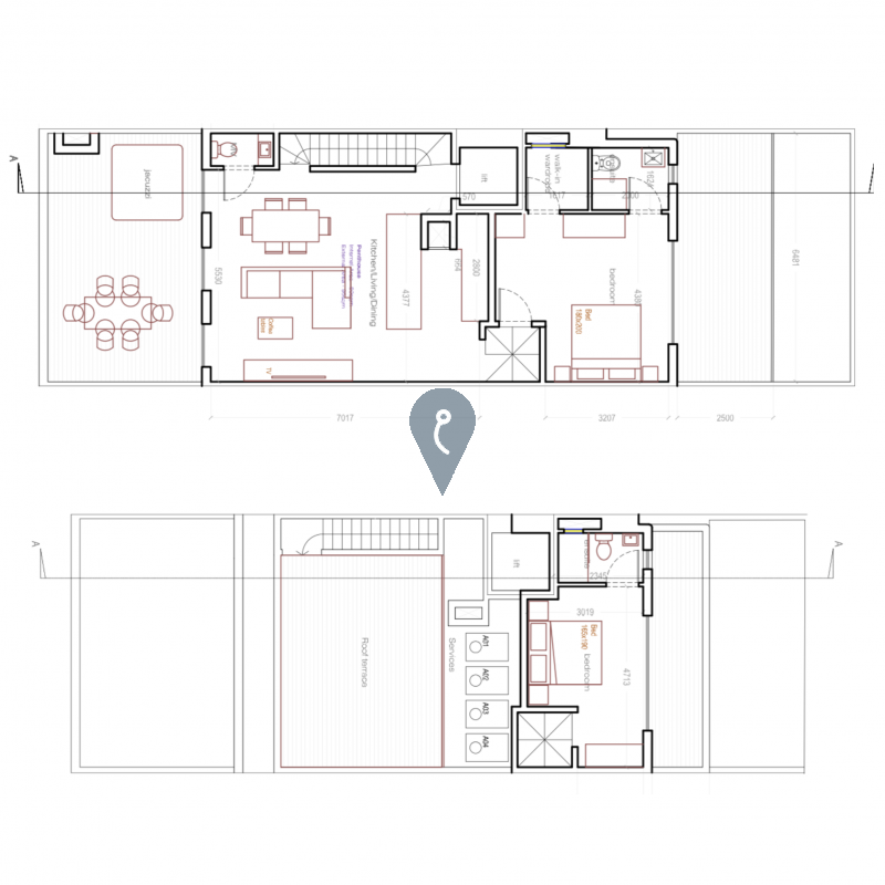
SLIEMA - A duplex penthouse situated close to the seafront and all amenities. This penthouse boasts high finishes including a hot tub. The layout comprises two bedrooms, two bathrooms (two en-suites), and one WC, an open plan kitchen/living area leading onto a large entertainment area. The property is to be finished including bathrooms and internal doors at a very high level. The completion date of the project is estimated to be delivered by the end of 2024. The penthouse comes with its airspace. This beautiful Penthouse is in a UCA area.
