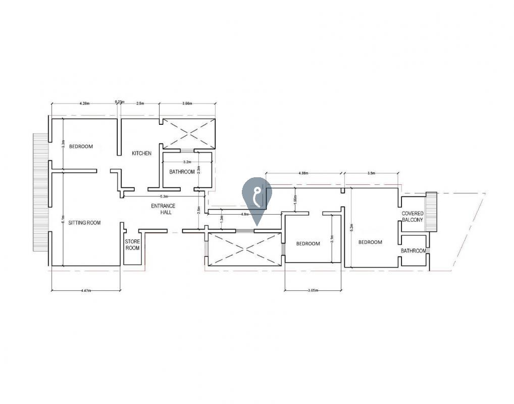
SLIEMA – A spacious freehold apartment measuring approximately 150 sqm, situated on the third floor of a well-maintained block served with lift. The building entrance has been recently modernised and a new lift has been installed.
The property is double-fronted, allowing for excellent natural light throughout. It is currently laid out as a three-bedroom apartment with two bathrooms and a separate kitchen. The kitchen can easily be converted into a fourth bedroom or a study, offering additional flexibility.
For further details or to arrange a viewing, please contact your Zanzi agent

