BUGIBBA
New development located just off the seafront close to all amenities.
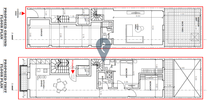
This duplex apartment is spread over the ground and first-floor levels of the building.
On the ground floor, one can find spacious living space with access to a 23 sqm backyard and guest bathroom.
The first floor of the apartment comprised a kitchen dining area with a front balcony, a guest bathroom, two double bedrooms (main bedroom with ensuite), and a back balcony.
The apartment is being offered finished excluding internal doors and bathrooms
The block is served with a lift.
Freehold.
