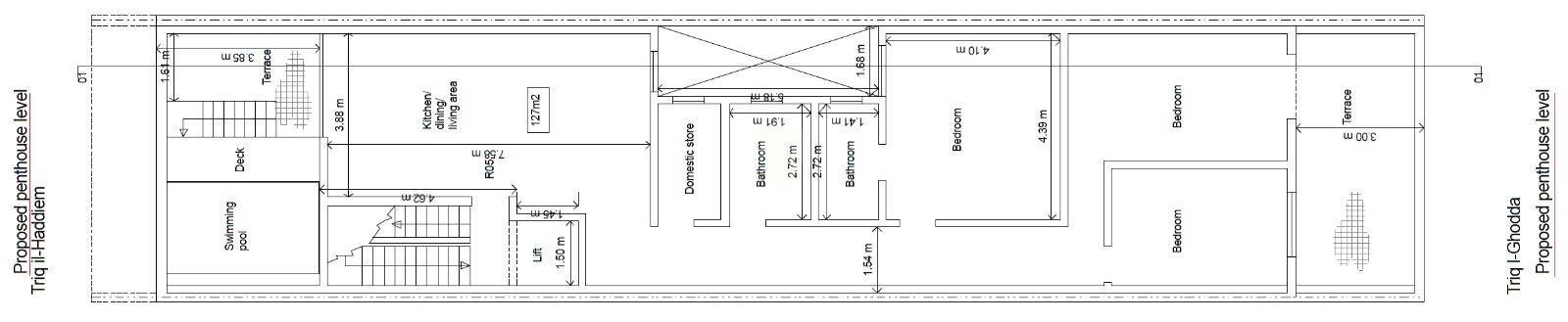
BIZEBBUGA - A beautiful there-bedroom Penthouse set on the fourth floor in a small block of only four units, set in a quiet residential area of B'Bugia. The property consists of a comfortable-sized open plan kitchen/living/dining area, three bedrooms, two bathrooms (Main with ensuite), a box room, a Spacious front terrace, and a large back terrace with space for a swimming pool and deck. Penthouse is being offered including Airspace. Property is being offered in shell form with apertures, and with common parts & facade ready. The block is to be completed by the end of April 2024. Not to be missed.


