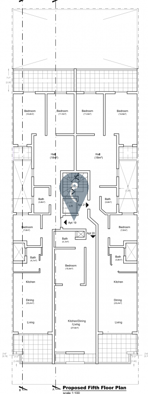
ST. PAUL'S BAY - A fifth-floor top-floor Penthouse located in a Cul-de-Sac. The layout comprises of 30 sqm Open Plan Kitchen, Dining, and Living with a front Terrace having a distant Sea View, a first double bedroom, a main bathroom, a second double bedroom, and a main bedroom with an ensuite, walk-in, and a back balcony.
This Penthouse will be offered without airspace. It can be bought at an extra price.
This Penthouse is currently in shell form state and will be offered semi-finished excluding bathroom and doors.
Completion of the development is by the end of December 2023.

