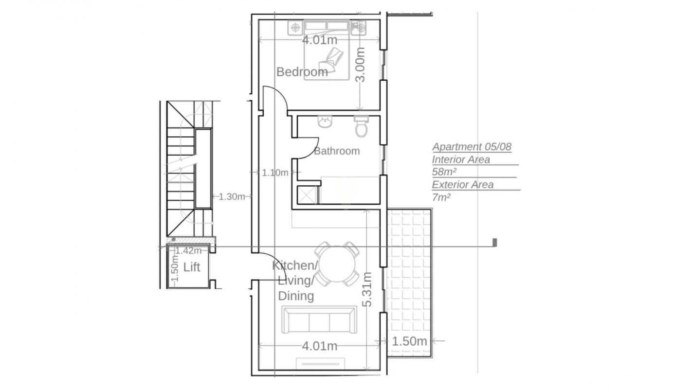
NADUR - Gozo. This second-floor apartment is an excellent opportunity for those seeking a peaceful and natural environment. The property boasts one bedroom, one main bathroom, and a large kitchen, living, and dining room with a front balcony. The apartment spans a total of 65 square meters, with 58 square meters of internal space and an additional 7 square meters of external space. The property is offered finished excluding doors. This freehold property is situated in a tranquil area, with wide streets and plenty of parking available. The apartment is just a short walk away from Ramla Bay and San Blas, offering residents access to stunning natural scenery. The property is south-facing and boasts a corner location, allowing for plenty of natural light and beautiful views of the surrounding nature. Families will appreciate the playground located nearby, providing a safe and fun place for children to play. This apartment is an excellent opportunity for those seeking a quiet and natural lifestyle. Common parts and lift are included. Contact us today to make it your own.


