: 2
: 1
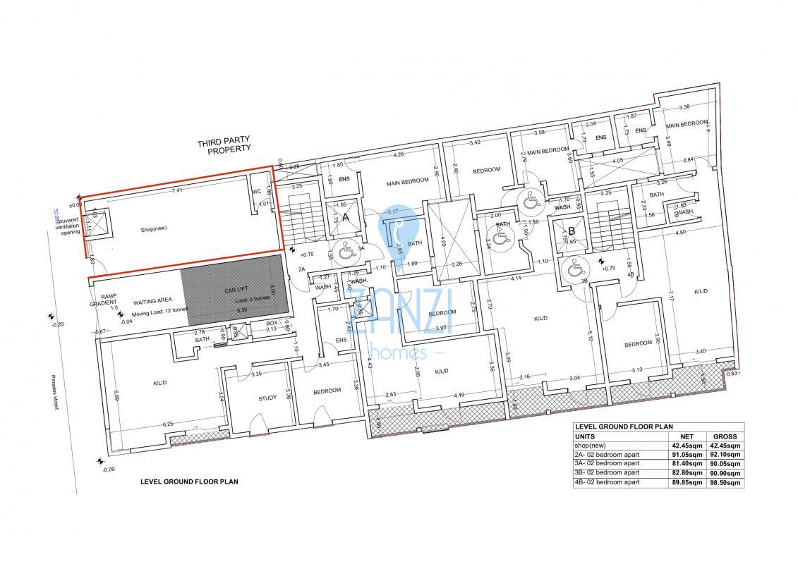
: St. Paul's Bay
ST. PAUL"S BAY - New development in the heart of St. Paul's Bay walking distance to the promenade and close to all amenities. Ground floor Class 4B retail shop measuring 42sqm and a guest toilet. Sold finished excluding bathroom.
