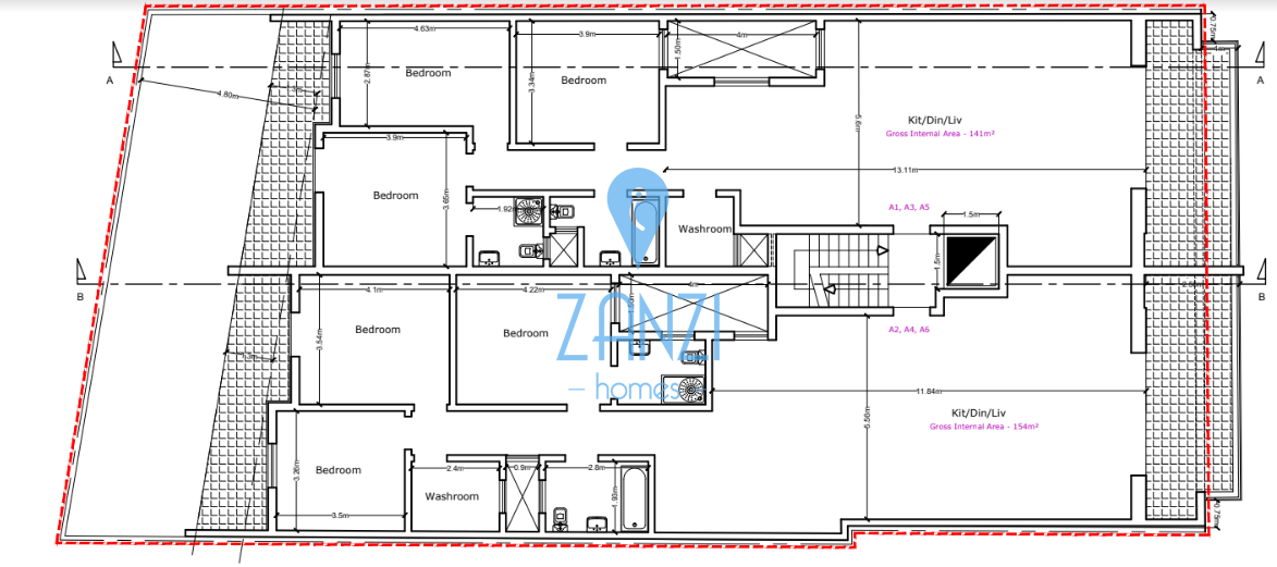
BURMARRAD- This Brand New development in Burmarrad is a Block of only 8 units. Has been finished with exquisite details and quality apertures. One should take note the glass on the terrace sound silent. Sitting on the Second floor comes this one-of-a-kind spacious 3 bedroom Apartment comprises of a large open plan kitchen/living/dining area with access to a terrace large enough for outdoor entertaining and enjoying country and valley views. Furthermore, it consists of 3 double bedrooms, the main bedroom with en-suite and access to a good-sized back balcony, a washroom, and a guest bathroom. This penthouse is being offered fully finished including bathrooms and internal doors, with A/C's in all rooms, and being sold Freehold. Optional are two and three-car garages available at additional cost. Square meters are Approximately total of 167 internal 143 and external 24. Lift services are also available. Must see!
