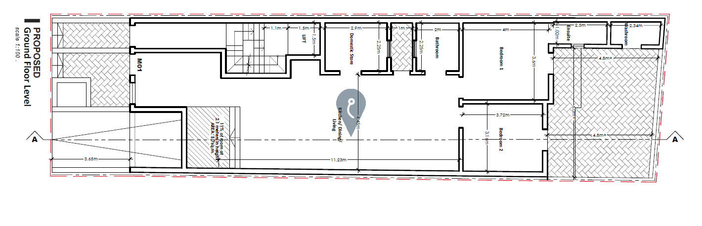
QORMI – Ground-Floor Two-Bedroom Maisonette. Situated in a residential area of Qormi, this ground-floor maisonette is being offered on plan, with completion scheduled for April 2028, making it a great opportunity for both homeowners and investors.
The property comprises a well-designed open-plan kitchen, living, and dining area, creating a comfortable and functional living space. The layout includes two bedrooms, with the main bedroom enjoying ensuite facilities, a main bathroom, and an additional domestic room, offering flexibility for storage or use as a study.
A backyard, complemented by a washroom, provides valuable outdoor space ideal for everyday use and entertaining.
The maisonette is being offered finished, excluding bathrooms and internal doors, allowing buyers the opportunity to personalise the final finishes according to their taste.


