Situated in one of Attard’s most sought-after residential areas, this beautifully maintained semi-detached villa offers an excellent balance of comfort, practicality, and timeless appeal. Offered fully furnished and ready to move into, the property presents an ideal opportunity for those seeking a welcoming family home in a quiet yet central location.
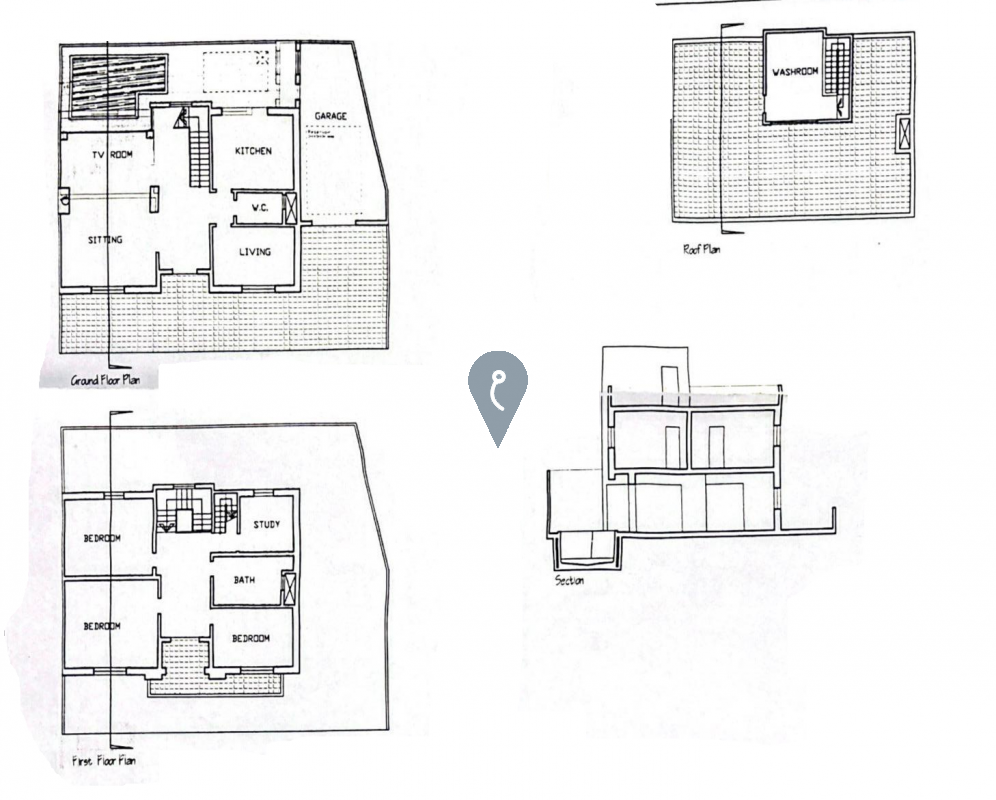
The ground floor accommodation is thoughtfully laid out and comprises separate kitchen, living, and dining rooms, creating a well-defined and functional living environment. The kitchen overlooks a private rear yard with a charming swimming pool, providing a lovely outdoor setting for both relaxed day-to-day living and entertaining.
On the first floor, the property offers three bedrooms, a main bathroom, and an additional versatile room ideal as a study, walk-in wardrobe, or home office, adding flexibility to suit a variety of lifestyle needs.
At roof level, a washroom leads onto the full roof, offering further potential for outdoor enjoyment or additional enhancement.
Further complementing the property is a garage with a convenient drive-in, adding both practicality and value.
A home of this nature, combining generous accommodation, outdoor space, a pool, and a highly desirable Attard address, represents a wonderful opportunity for families looking to establish themselves in one of Malta’s most popular residential villages.


