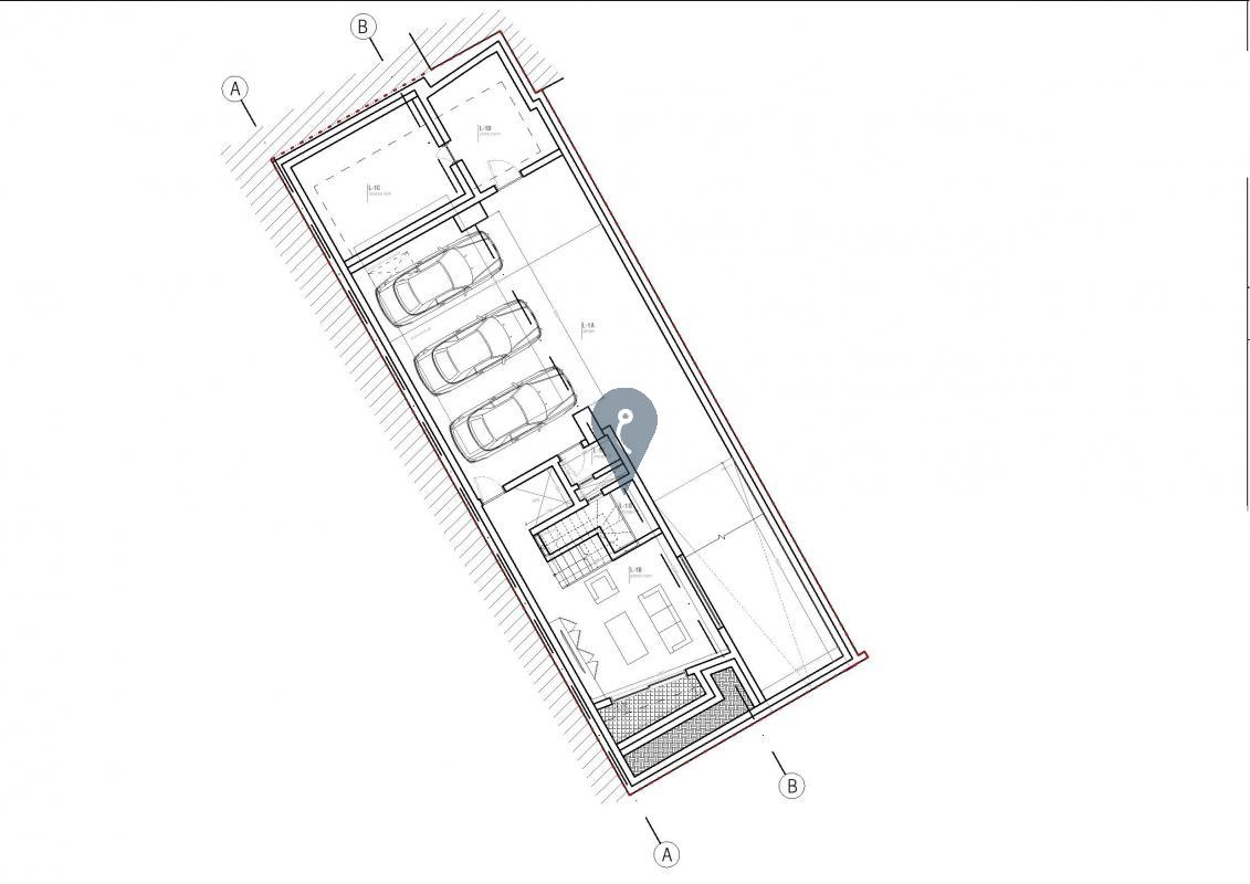
Set within Monterosa Gardens, this exceptional villa is being offered at the pre-construction stage in shell form, presenting a rare opportunity to create a bespoke residence tailored to your own style and requirements. Built on a generous plot of approximately 225 sqm and designed over multiple levels, the property offers an impressive layout ideal for modern family living.
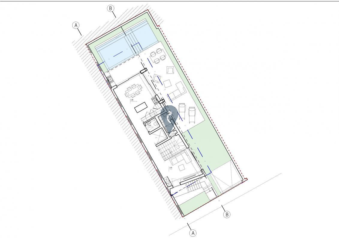
The accommodation is planned to include a spacious open-plan kitchen, living, and dining area leading onto an extensive outdoor entertaining space with a swimming pool, ideal for relaxing or hosting guests. The upper floor is designed to feature three double bedrooms, each with its own en-suite, including a principal suite with a walk-in wardrobe.
Further complementing the home is a large underlying garage, a games room, storage areas, lift access to all floors, a washroom, and a roof level with ample outdoor space. Freehold.
Opportunities offering this level of space, features, and potential within this price bracket are becoming increasingly difficult to find, making this a particularly compelling purchase for discerning buyers. Early interest is encouraged, as properties offering this kind of value rarely remain available for long.


