Situated in the residential area of Misrah Kola, Attard, comes this well-planned villa set on a plot of approximately 260sqm, being offered in shell form.
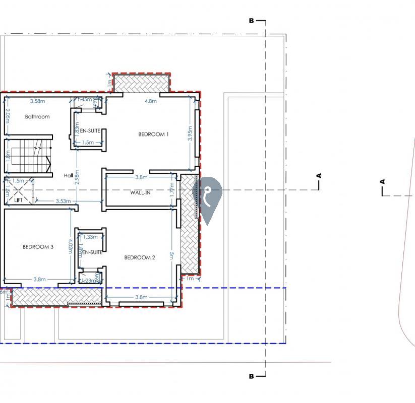
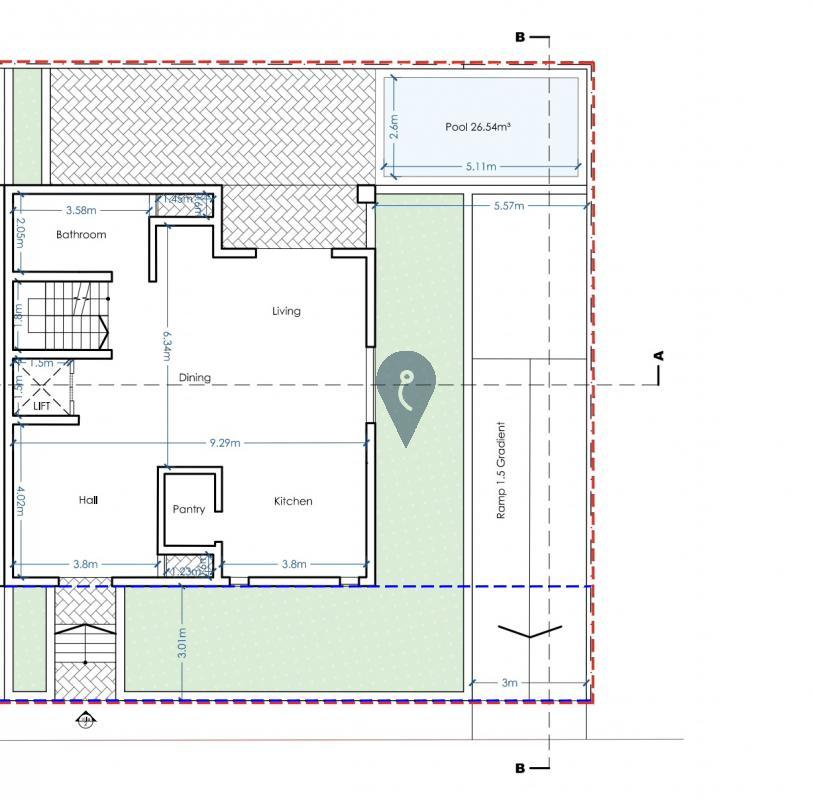
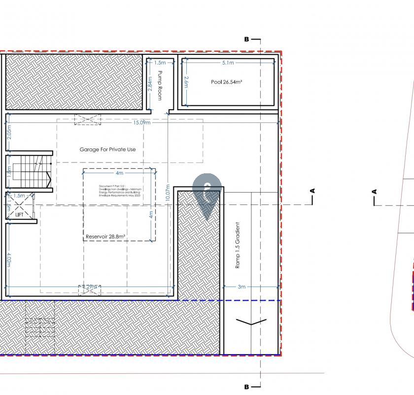
The property enjoys a functional layout spread across multiple levels, all interconnected via both a lift and a staircase.
The basement level includes a large underlying garage and pump room, offering ample storage and parking space.
On the ground floor, the layout comprises a spacious open-plan kitchen/living/dining area, a guest bathroom, a pantry, and access to the outdoor area with a private pool and front garden.
The first floor features three bedrooms, two of which have en-suite facilities, with the main bedroom also benefiting from a walk-in wardrobe.
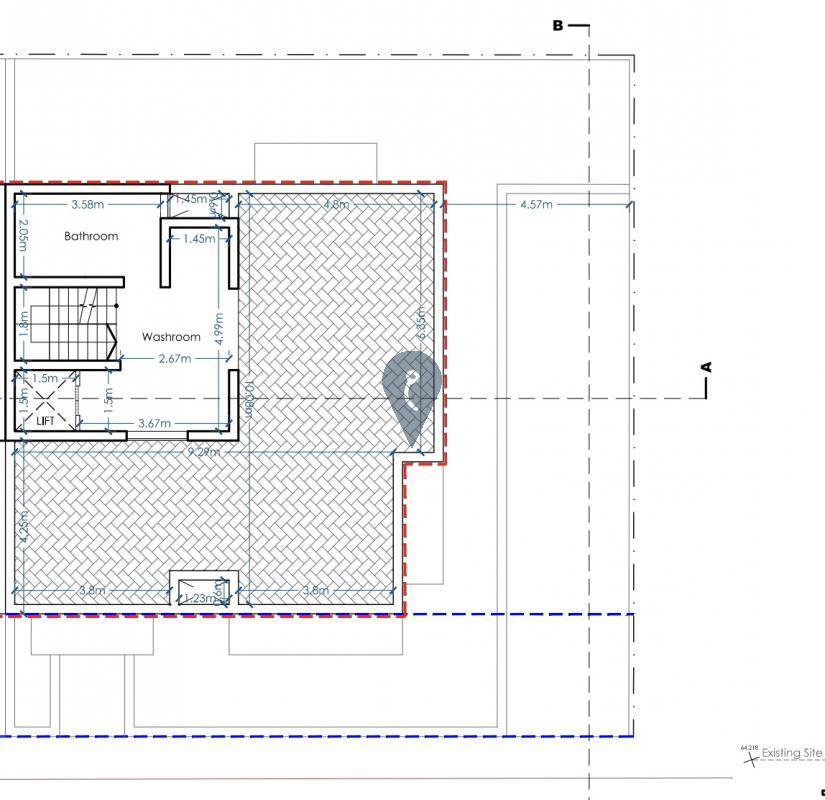
On the second floor level, one finds a washroom, an additional bathroom, and a sizeable terrace, ideal as an outdoor entertaining area.
This property is being sold freehold, in shell form, and offers a solid opportunity to customise finishes to one’s preference in a quiet yet central residential location.
Please feel free to get in touch for more information or to set up a viewing.
