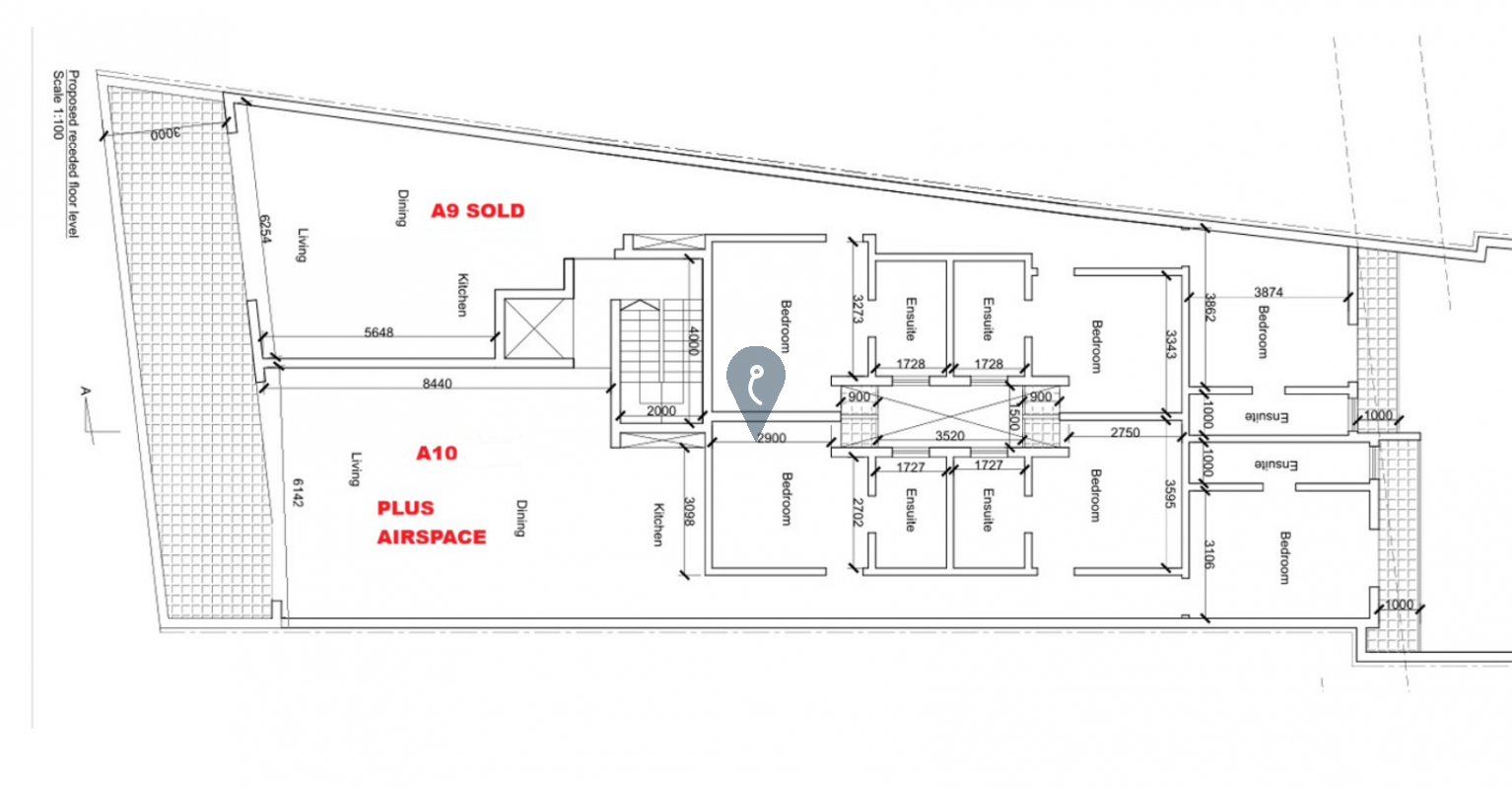
Kalkara - (A10) 3 Bedroom Penthouse located on the second floor level, Open plan connected to a well sized Terrace leading to 3 bedrooms 2 of which with ensuite bathrooms, main bathroom and back balcony. Sold in Shell form and freehold. Deposit to be given upon final executable permit. With an additional 10% deposit, a 10% discount is given on the price of the unit or pro-rata (Capped at 30% and depending overall sales). Be in touch should be needed. Optional Finishes Packages as per the below excluding doors and bathrooms. (€25,000).

