: 1
: 1
: Kalkara
Balcony
Freehold
A - Ultra Modern
B - Modern
Front Terrace
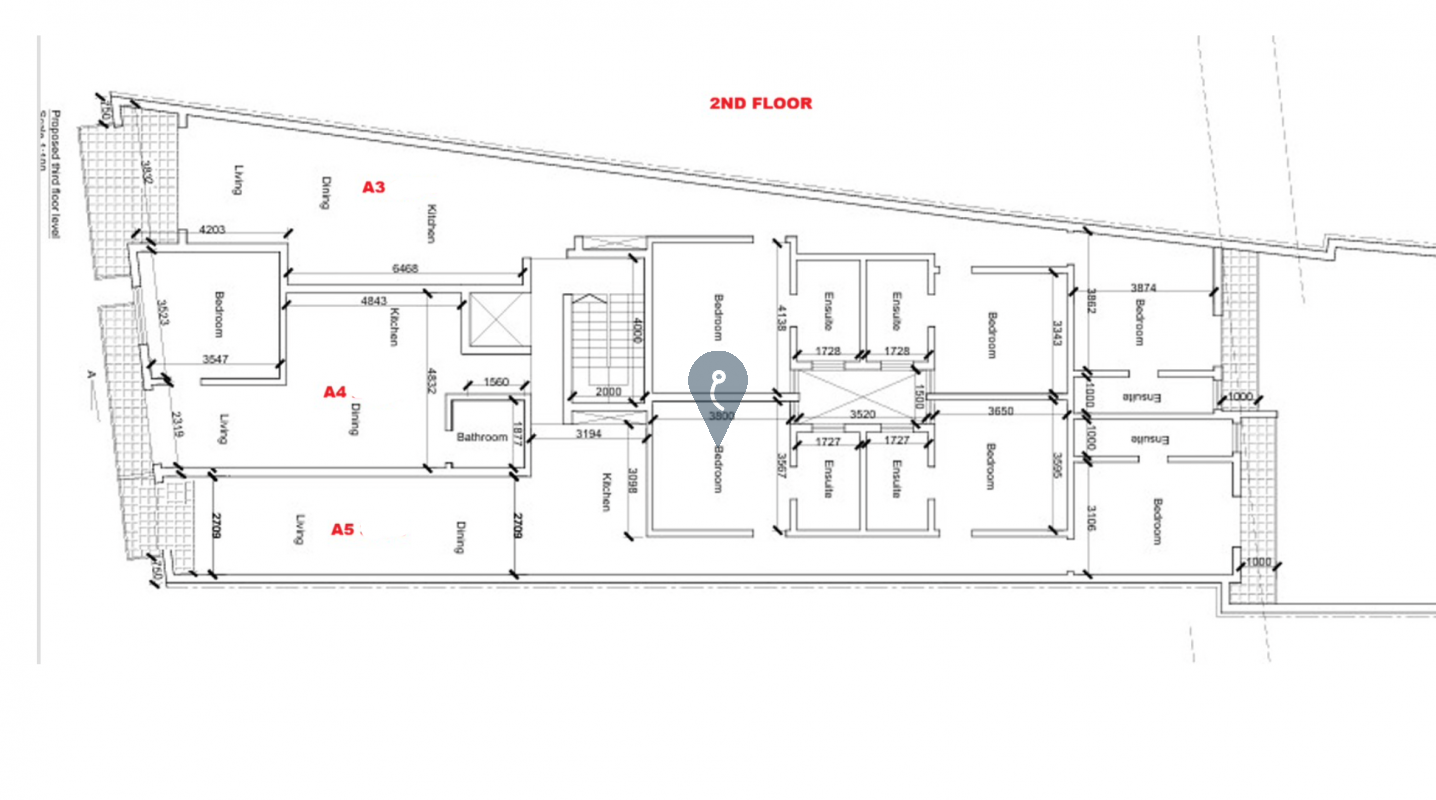
Kalkara - (A7) 1 Bedroom Apartment located on the second floor level, Open plan and a bathroom connected to a well sized balcony and a bedroom. Sold in Shell form and freehold. Deposit to be given upon final executable permit. With an additional 10% deposit, a 10% discount is given on the price of the unit or pro-rata (Capped at 30% and depending overall sales). Be in touch should be needed. Optional Finishes Packages as per the below excluding doors and bathrooms. (€25,000).
You might also like
No Similar Property found, however we suggest that you contact us so we can find your ideal property through our partners
