Set within the charming village core of Żebbuġ and located within a UCA, this boutique development of just seven townhouses presents a rare opportunity to acquire a characterful yet highly functional family home in one of Malta’s most sought-after traditional villages. Designed over multiple levels and offered in shell form, the properties combine authentic Maltese architectural elements with spacious modern layouts, making them ideal both as residences and long-term investments.
The houses offer a variety of layouts and sizes, ranging from approximately 189 sqm to 225 sqm, each comprising three double bedrooms, multiple bathrooms, generous open-plan living areas, and private roof spaces with excellent entertaining potential, including scope for rooftop pools. Airspace is included, further enhancing future flexibility and value.
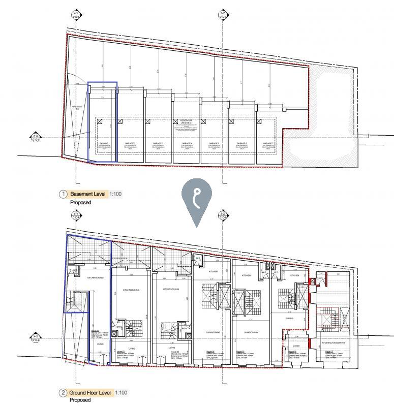
A standout feature of this development is that each home benefits from an underlying one-car basement garage, a highly desirable feature within a village core setting. Common parts, including the garage area and façades, are to be finished by the developer, further adding to the appeal.
With only seven residences available, a sought-after Żebbuġ location, UCA advantages, and completion targeted for 2027, this is a compelling opportunity to secure a distinctive townhouse with strong lifestyle and investment credentials.
*Visuals shown are computer-generated renderings intended for illustrative purposes only. Final finishes, layouts, and specifications may vary.


