Duplex Penthouse in quiet area located in a highly sought-after and tranquil area, this exceptional duplex penthouse forms part of an exclusive block of just two units. Recently finished to high standards, it occupies the second and third floors and includes full airspace.
The lower level offers a bright open-plan living and dining area leading to a spacious front terrace with garden views, a fully equipped modern kitchen with pantry, guest toilet, and a master bedroom with walk-in wardrobe and ensuite.
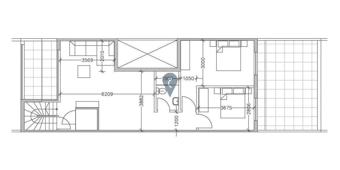
Upstairs features a versatile landing (ideal as a second living area, library and study) two double bedrooms with a large back terrace, a shower room, and an additional front terrace. A private roof terrace with laundry space crowns the property.
Freehold, partly furnished, with optional two-car garage nearby.

