: 1
: 1
: Birkirkara
Lift
Open Plan
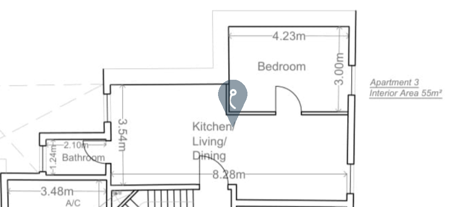
BIRKIRKARA. One-bedroom Apartment located in one of the most sought-after central areas.
The property consists of an open-plan kitchen/living/dining room, a main bathroom, and a spacious master bedroom. The property is located on the first floor of a brand new development, and is being offered in shell form with an optional finishing package.
