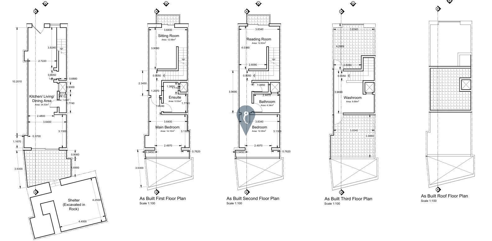
Located in a quiet residential area of Mellieħa, this charming townhouse offers a fantastic opportunity to create a spacious family home or a strong rental investment. This beautiful three-bedroom property can easily be converted into a four-bedroom residence and is filled with natural light throughout.
The ground floor features a cozy living room, a kitchen, a guest toilet, a small storage room, and a patio that leads to a unique small cave — ideal for transforming into a wine cellar or even a compact indoor pool. On the first floor, you’ll find a main bedroom with an ensuite bathroom, along with a second smaller bedroom that enjoys access to a balcony or sitting area.
The next level offers another bedroom (or study), a bathroom, and a small washroom/box room, providing flexible living space for a growing family or home office needs. At the top of the property is a versatile room that can serve as a study or washroom, or even another kitchen, opening onto spacious front and back terraces. These outdoor areas are perfect for BBQs, dining, and entertaining guests.
While the rooms would benefit from some light TLC, the property is in good overall condition and presents huge potential to personalize and add value. With its peaceful location, bright interiors, and flexible layout, this townhouse is an excellent opportunity for homeowners and investors alike.


