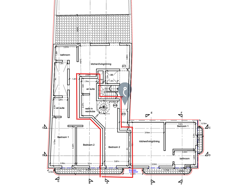
This duplex penthouse offers an exceptional layout spread across two levels, combining generous space, comfort, and style.
The upper level spans approximately 163sqm and features an open-plan kitchen, living, and dining area leading onto a spacious terrace complete with a private jacuzzi pool and beautiful views—perfect for relaxation and entertaining.
The lower level measures around 34sqm and includes a luxurious master bedroom suite complete with a walk-in wardrobe and en-suite bathroom, creating a private and elegant retreat. In total, this stunning property comprises two bedrooms and two bathrooms, thoughtfully designed for modern living.
Ideally situated in the heart of Mellieħa, find a high-quality residential development just moments away from the village center, popular restaurants, hotels, and some of Malta’s most stunning beaches. This boutique project combines convenience, comfort, and investment potential in one of the island’s most sought-after northern localities.
Offered on plan and designed with long-term value in mind, the block comprises a choice of one- and two-bedroom apartments, ideal for both rental investment and private use. All units are being offered finished (excluding internal doors and bathrooms), with the main entrance door included.
Construction commences in Q4 of 2025, and the project will be complete by Q1 2027. All units are freehold. Contact the listing agent for more information or a viewing.
