: 3
: 2
: Zejtun
Balcony
Lift
Garage
Open Plan
Semi Finished
Freehold
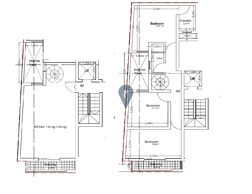
ZEJTUN - Duplex apartment forming part of a block, situated on the second and third floors. This property comprises an open-plan leading to a front balcony on one level and three bedrooms and two bathrooms (one en-suite) on the other level. Being offered finished, excluding bathrooms and doors. Complementing this property is a one-car garage, included in the price. Freehold. Call us for an immediate viewing!

