PIETA - This spacious duplex apartment is located in a sought-after area of Pietà and is spread over two floors, offering plenty of room for comfortable living.
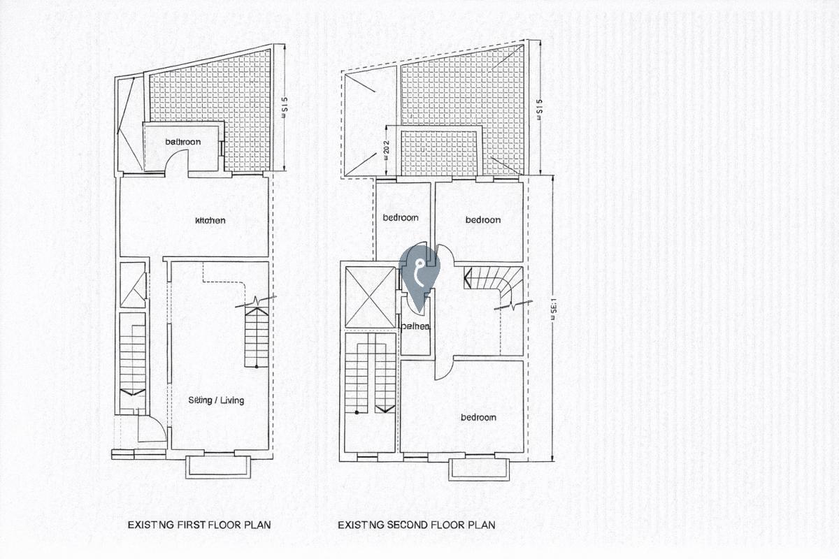
On the upper level, there are three bedrooms and a main bathroom. This floor is perfect as a private sleeping area, giving separation from the main living spaces below.
On the lower level, you will find a bright open-plan area that includes the living room, dining space, and sitting area. There is also a separate kitchen and a second bathroom on this floor, making the layout very practical for daily use.
At the back of the property, there are terraces and balconies overlooking large gardens, with nice open views and even distant sea views. The atmosphere is peaceful and relaxing, which is not easy to find in central locations.
The apartment also has access to the roof. It can easily be divided into two separate units, making it ideal either as a comfortable family home or as a rental opportunity with good return potential.
The property lies with a UCA area and is exempt from tax.


