: 3
: 3
: Zebbug
Furnished
Roof Terrace
Ground Floor
Airspace
Freehold
roofTerrace
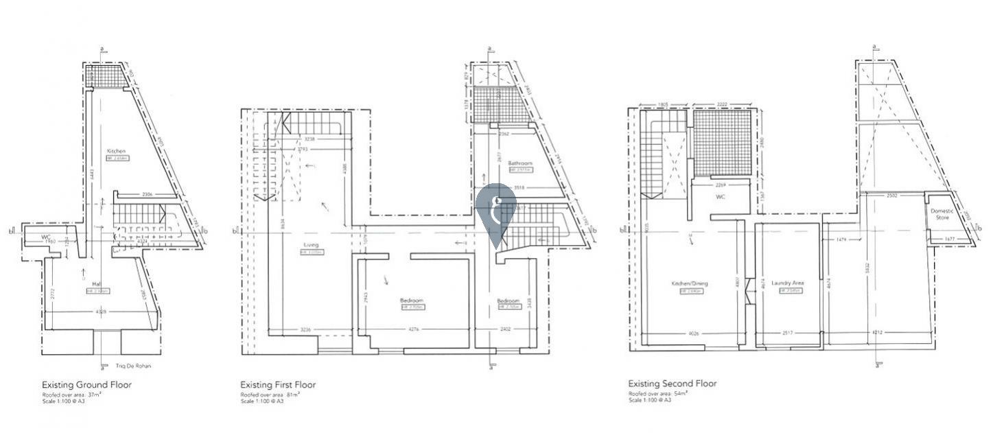
ŻEBBUĠ (UCA) – A well-proportioned townhouse offering a total liveable area of circa 172 sqm, comprising three bedrooms, three bathrooms, and two kitchens, making it ideal for both family living and rental potential. The property further enjoys a yard and a roof terrace, providing excellent outdoor space for entertaining and everyday use, all set within a sought-after residential area of Żebbuġ.

