: 2
: 2
: Naxxar
Open Plan
Semi Finished
Square Layout
Front Terrace
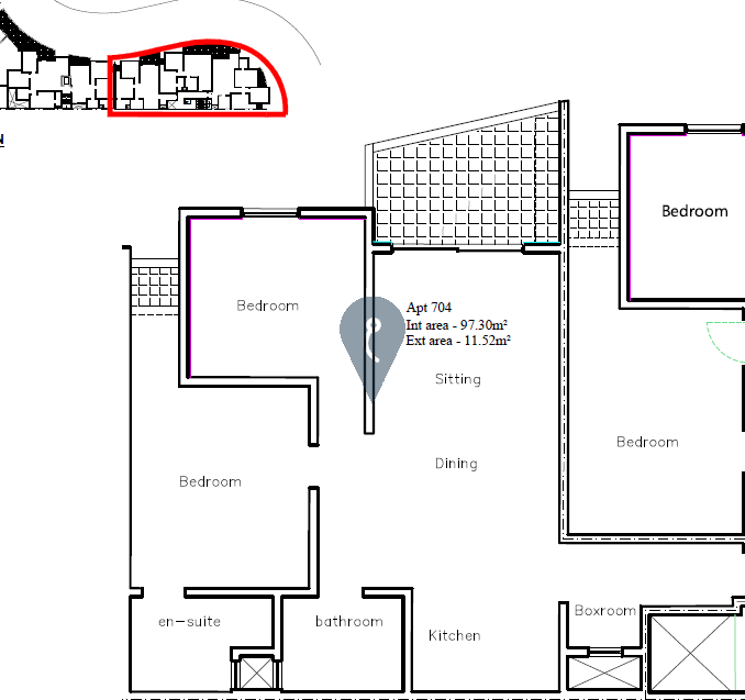
NAXXAR. Larger-than-usual two-bedroom Apartment located in a brand new development in the heart of Naxxar.
This Apartment consists of a large open-plan kitchen/living/dining room, a small boxroom, a main bathroom and ensuite, and a large front terrace, ideal for entertaining. The property is ready-built and is being offered semi-finished. Optional garages are also available.
